Обяви За нас Контакти
Продава КЪЩА
област София, с. Долна Малина
217 000 €
424 415.11 лв.

(986 €, 1 928.45 лв./m2)
Цената е с включено ДДС
История на цената
Публикувана в 20:03 на 26 април, 2025 год.
Обявата е посетена 701 пъти.
Площ:
220 m2
Двор:
450 m2
Етаж:
2 от 2
Строителство:
Тухла, Ще бъде въведен в експлоатация 2025 г.

Описание на имота:


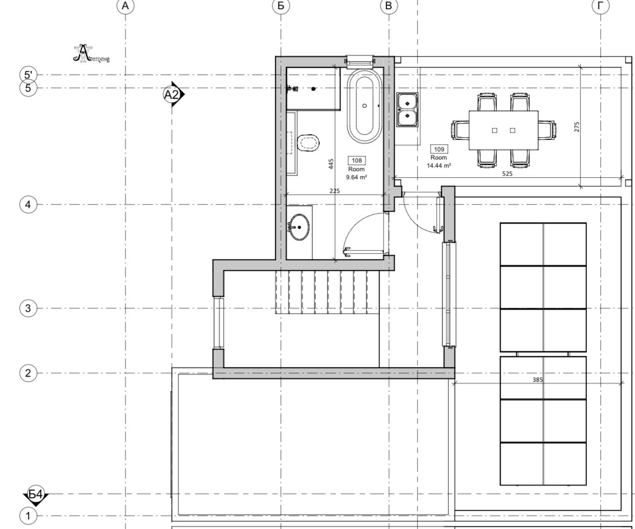
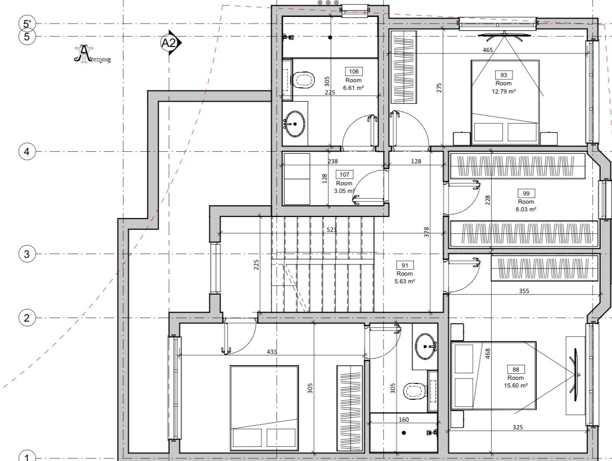
ИЗКЛЮЧИТЕЛНИ ПРАВА!Търсите бягство от забързаното време и място , което да наречете своят нов дом за живеене или релакс сред природата .Ние имаме решение Предлага ме на вашето внимание едно ново предложение което ще бъде изградено с нова и иновативна технология съчетаващо в себе си тишината ,уюта и спокойствието на селската къща и удобството и реактивността на забързаното ежедневие.Този нов дом търси своите бъдещи стопани.Млади и смели експериментатори или хора който търсят бягство от забързаното ежедневие и градският хаос това е вашата оферта просто трябва да ни потърсите! Предлагаме Ви къща със самостоятелен двор от 450 кв.м. .Сред прекрасна гледка и модерен стил . Къща с квадратура от 220 кв.м. ще бъде функционално изградена на два жилищни етажа и едно модерно покривно пространство.На първото ниво - е разположена външен гараж, малка спалня /тип кабинет / от 13 кв.м ,хол с голяма тераса ,баня и тоалетна всичко това практично разположено с вход от преддверие със стълбищна част под която се намира мокро помещение.По стълбите се качвате на второто ниво в, което има коридор ,три спални / една детска ,стая за гости и родителска стая с тераса/ баня и тоалетна и мокро помещение с изводи за пералня и сушилня. По вътрешните стълби може да се качите на покривното пространство, което може да бъде превърнато във вашето място за релакс и отдих. Къщата ще бъде изградена от стоманобетона конструкция ,тухли, високо качествена облицовка на BAUMIL и 10м. изолация ,големи френски прозорци, отоплението е решено на ток .Предстои разрешение за строеж.Строителството се очаква да започне в началото на Юни месец.2025г. Прилагаме разпределение на всеки един от етажите. Къщите могат да бъдат и завършени до ключ срещу преференция цени за бъдещите собственици. В непосредственно до тази оферта предлага ме къща на същият собственик / възложител която вече е изградена и завършена от нас на етап А-15,с квадратура 110 кв.м.с подобно разпределение. Ако тези офери представляват интерес за вас не се колебайте да ни потърсите.Не ни жалете а звънете. Очакваме ви на телефони 0876332259,0876424172, Агенцията предлага професионално съдействие за ипотечни и потребителски кредити от водещи търговски банки, дизайнерски ремонтно довършителни дейности на предлаганите имоти.До две седмици ще качим цялостно вътрешно разпределение!
Виж всички обяви в iendi.bazar.bg или тук
Особености
Тухла
За контакт:
0876332259

Този имот се предлага само на частни лица
Агенция:
АЙ ЕНД АЙ 2009
0876424172,0876332259
АЙ ЕНД АЙ 2009 logo
Медал за прослужено време
В imot.bg от 2012 г.
iendi.imot.bg
Адрес:
област София, гр. София, ж.к.Красно село,бл.16,ет1
ИЗПРАТИ ЗАПИТВАНЕ
ИЗПРАТИ ЗАПИТВАНЕТО

Продава КЪЩА
област София, с. Долна Малина
Обява: 1j174568700775336

217 000 €
424 415.11 лв.
История на цената
(986 €, 1 928.45 лв./m2)

Цената е с включено ДДС
ЗАПАЗИ ОБЯВАТА

Местоположение: област София, с. Долна Малина